Beschrijving
Wonen op een plek waar stad en natuur prachtig worden gecombineerd? Kom thuis in Mondriaanstraat 3 te Apeldoorn! Deze charmante instapklare tussenwoning uit 1965, volledig met kunststof kozijnen met isolatieglas uitgevoerd, bevindt zich op 100 meter van het Orderbos en heeft vrij uitzicht voor -en achter. Met een woonoppervlakte van maar liefst 98m2 en drie slaapkamers is de woning uiterst geschikt voor een gezin met opgroeiende kinderen. Zo straalt de woonkamer warmte en gezelligheid uit, is de badkamer erg stijlvol vormgegeven en heeft u een ruime recent aangelegde achtertuin op het zuidwesten. Bovendien is aan opslagruimte geen gebrek; een schuur van 10m2 en een grote zolderverdieping kunnen naar eigen wens worden gebruikt. Tot slot hoef je je geen zorgen te maken over de energierekening; de goede isolatie resulteert in energielabel B. Ben je geïnteresseerd in deze woning en wilt u er meer over weten? Laat het ons weten, wij leiden je graag rond.
Mondriaanstraat 3 is uitstekend gelegen; zo sta je binnen 9 minuten lopen in winkelcentrum Orderplein. Hier zijn meerdere kledingwinkels, drogisterijen en gezellige horecagelegenheden. Ook zijn in de buurt meerdere sportverenigingen, een huisarts en een dierenarts te vinden. Kinderen groeien prettig op in deze buurt; speeltuinen, basisscholen en natuur wisselt elkaar uitstekend af. Als natuurliefhebber ben je in de Mondriaanstraat op een unieke plek. Met een oppervlakte van 91.200 hectare is de Veluwe het grootste aaneengesloten natuurgebied van Europa. Het gebied staat bekend om haar vele wandel/fietsroutes, uitgestrekte landschappen en grote diversiteit aan wilde dieren. Daarbij is Apeldoorn een middelgrote stad en ligt het centraal tussen steden als Arnhem, Deventer, Amersfoort en Zutphen.
De indeling is als volgt:
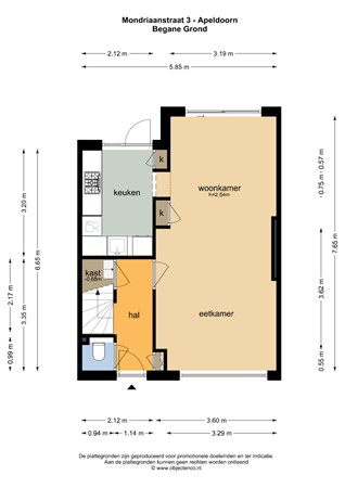
Begane grond:
Vanuit de hal heb je toegang tot het toilet, de woonkamer en de trap naar de eerste verdieping. De keuken grenst aan de woonkamer. Het toilet (2021) is zwevend en volledig betegeld. In de woonkamer valt direct de grote hoeveelheid aan daglicht en de warme uitstraling op. Zo is er een prachtige houten vloer, zijn er grote ramen aan weerszijden. Je realiseert hier gemakkelijk een comfortabele zit- en eethoek. De keuken (2010) bevindt zich naast de woonkamer en verkeert in goede staat. Deze is hoekvormig, beschikt over een 5-pits gasfornuis, veel opslagkastjes en vrijwel volledige betegeling. Tevens heb je vanaf zowel de keuken als de woonkamer toegang tot de achtertuin.
Eerste verdieping:
De eerste verdieping bestaat uit een overloop, twee slaapkamers, een tweede toilet (2021) en de badkamer (2021). De slaapkamers zijn 10,8m2 en 13m2 en beschikken beiden over een handige ingebouwde kast. Ook zijn de kamers uitstekend afgewerkt en kun je er naast een tweepersoonsbed eenvoudig ander meubilair plaatsen. De badkamer is een stijlvolle ruimte waar moderniteit en comfort samenkomt. Hier is een ruime instapdouche, een dubbele wastafel, kolomkasten en een designradiator aanwezig. Tot slot is de gehele ruimte voorzien van grote lichtgrijze wand- en vloertegels; de inbouwspotjes in het plafond werpen een fraai licht op het geheel. Het toilet op deze verdieping is volledig betegeld, zwevend en beschikt over een wc-fonteintje en een wasmachineaansluiting.
Zolderverdieping:
Op zolder vind je een overloop en de derde slaapkamer. Deze kamer beslaat een oppervlakte van 12m2 en heeft aan beide zijden twee ramen waardoor er veel daglichttoetreding is. De grote dakkapel maakt het samen met het uitstekende afwerkingsniveau een fijne plek om in te richten naar eigen behoeven.
Exterieur:
Mondriaanstraat 3 heeft een voor- en een achtertuin. De voortuin bestaat uit mooi straatwerk, planten en bloemen met straatwerk naar de voordeur. De achtertuin is recent ontworpen en aangelegd. Bomen, planten, bloemen, pergola, vijver, mooi straatwerk, terras. Daarnaast beschikt je over een stenen schuur waar je je fietsen en tuingereedschap kunt behoeden tegen regen en diefstal. Op het betegelde terras op het zuidwesten kunt in privacy genieten van de zon en het uitzicht over uw gloednieuwe woning.
Bijzonderheden:
- Instapklare eengezinswoning in Apeldoorn
- 3 slaapkamers
- 98 m2 aan wooncomfort
- Energielabel B
- Volledig voorzien van kunststof kozijnen met isolatieglas en nieuwe voor -en achterdeur
- Grenst aan het Orderbos
- Op loopafstand van een winkelcentrum
- Fraai recent aangelegde voor -en achtertuin gelegen op het zuidwesten
- Ruime lichte woonkamer met veel daglicht
- Luxueuze en stijlvolle badkamer en 2 toiletten
- Bouwjaar 1965
Voor een volledig overzicht verwijzen wij je graag naar de digitale plattegronden, de foto's, de video en de eigen website van deze woning: mondriaanstraat3.nl