Beschrijving
**Wonen aan het Ledaplantsoen: rustige droomplek met alles in de buurt!**
Stel je voor: je wordt wakker, open je gordijnen en kijkt uit over een frisgroen plantsoen met speeltoestellen – geen drukke weg voor je deur, maar rust en ruimte om je dag goed te beginnen. Middenin Apeldoorn Oost, aan het gezellige Ledaplantsoen 21, staat deze leuke en comfortabele eengezinswoning te wachten op nieuwe bewoners!
**Ruimte en licht in overvloed**
Zodra je binnenkomt via de hal met toilet (wel zo makkelijk!) en CV-ruimte, valt één ding meteen op: wat een fijne, lichte sfeer! De tuingerichte woonkamer is lekker ruim en efficiënt, terwijl je een heerlijk vrij uitzicht op het groen aan de voorzijde hebt – zo woon je dus aan het leukste stukje van dit plantsoen. Met ca. 100 m² aan woonoppervlak hoef je trouwens absoluut geen vierkante meter tekort te komen.
**Fijne leefkeuken**
De open keuken is misschien niet nagelnieuw, maar biedt bijna alles wat je nodig hebt. Denk aan inbouwapparatuur zoals een spoelbak, vaatwasser, inductiekookplaat en een afzuigkap. De combi- magnetron kan jijzelf plaatsen en de koelkast is aan vernieuwing toe. Zin om creatief te koken? Hier kan het – en je houdt gezellig contact met iedereen in de woonkamer. Ideaal als je gasten hebt of samenwoont met een gezin.
**Tuinplezier: spelen, borrelen en relaxen**
Met een tuin van ongeveer 60 m² aan de achterzijde heb je volop plek om vrienden uit te nodigen, je kinderen te laten spelen, of lekker onderuit te zakken met een drankje in de hand. Doe er wat je wilt – barbecueën, tuinieren of gewoon niets doen! Je eigen parkeerplaats bevindt zich direct achter de woning, net als een handige, vrijstaande stenen berging voor fietsen en tuingereedschap.
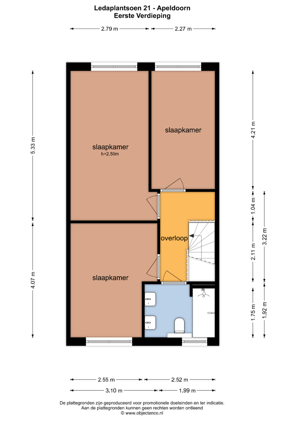
**Lekker slapen en baden – drie slaapkamers & ruime badkamer**
Boven is het al net zo fijn. Via de overloop (met kastruimte en aansluiting voor je wasmachine – altijd handig!) kom je bij drie ruime, lichte slaapkamers. Of je nou een jong gezin bent, een starter met plannen, of op zoek naar kantoorruimte aan huis, hier kun je alle kanten op. De nette badkamer maakt het plaatje compleet, met een ligbad/douche (lekker languit na een drukke dag), dubbele wastafel en tweede toilet.
**Gezelligheid, gemak en groen – wonen in Apeldoorn Oost**
Dit huis heeft eigenlijk alles wat je zoekt: gelegen in een populaire, kindvriendelijke wijk met alleen bestemmingsverkeer; buurtsuper om de hoek; NS-station, stadscentrum, sportclubs en scholen vlakbij. En, misschien wel het belangrijkste: je loopt zó het parkachtige plantsoen in. Klinkt goed, toch?
Met uitvalswegen als de A1 en A50 praktisch om de hoek, zijn jouw opties eindeloos, of je nu richting werk, familie of vrienden gaat.
**Kijken? Zeker doen!**
Of je nou koopt als starter, gaat groeien met een (jong) gezin, of de volgende stap in je wooncarrière maakt: Ledaplantsoen 21 is die fijne, complete gezinswoning op een topplek in Apeldoorn Oost die je echt gezien moet hebben. Kom kijken, proef de sfeer en wie weet ben jij straks de gelukkige nieuwe bewoner. Je bent van harte welkom!
**Check ledaplantsoen21.nl voor fullscreen foto’s en meer info**
Wil je alvast digitaal rondneuzen? Ga zeker eens naar www.ledaplantsoen21.nl voor pakkende foto’s en alle relevante documentatie. Zie je jezelf hier al wonen? Laat deze kans dan niet aan je voorbij gaan en boek online je bezichtiging in.